Sun Meadow Apartments

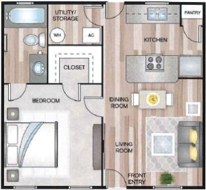
Sun Meadow Apartments consists of 77 units. consists of 40 units. Convenient location to Walmart, H-E-B, pharmacies, fast food restaurants, medical and banks.

404 N. Cesar Chavez Rd. • Alamo, TX 78516
Phone: 956-702-7879
Community Director: Nubia Zamora
Email: sunmeadow@mdpmgt.com

Community Amenities
  • 24-7 Laundry Care Facility

  • Community Room

  • Bar-B-Que Pits